Marifjell

Soverom4
Bad1
Vaskerom1
Bod1
Utvendig bod1
CarportJa
Bruksareal sokkel73.9m2
Bruksareal 1. etg77.5m2
Overbygg30.6m2
Bruksareal totalt187.8m2
Bebygd areal (BYA)128.7m2
Lengde15.7m
Bredde8.2m
TomtetypeSkrå
EnergimerkingB

Marifjell - Moderne og funksjonell bolig

Marifjell er en moderne boligmodell som kombinerer funksjonalitet, lys og luftige løsninger med en kompakt form som gjør den særlig godt egnet til skrå tomter og mindre arealer.

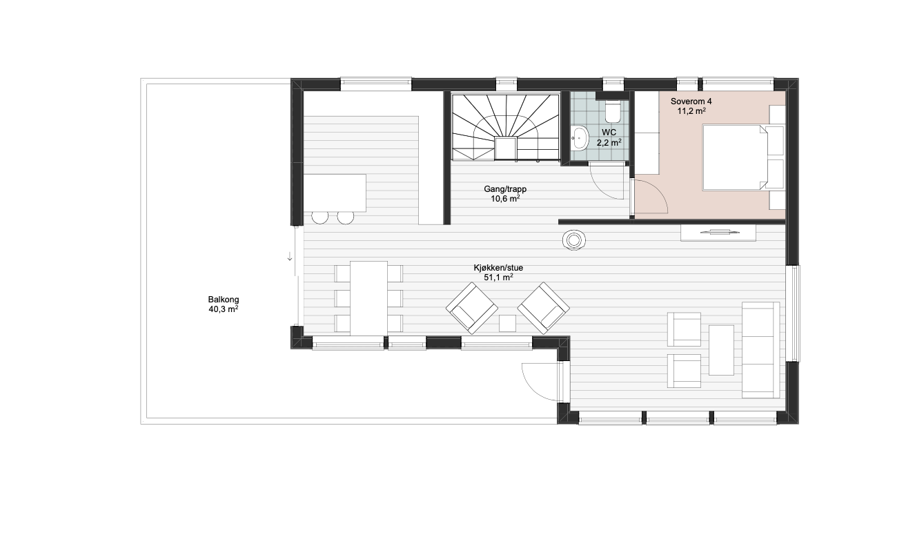
Boligen byr på fire soverom, som gir god plass til både familie og gjester. Den praktiske planløsningen inkluderer et romslig bad, et separat ekstra toalett, samt et stort vaskerom. I tillegg finner du både innvendig og utvendig bod, som gjør det enkelt å holde orden på alt fra sportsutstyr til hageredskap. Den integrerte carporten sørger for overbygd og praktisk parkering.

På hovedplanet åpner boligen seg opp med en stor og åpen stue- og kjøkkenløsning, hvor flere soner gir mulighet for både hyggelige familiesamlinger og roligere stunder. De store vindusflatene slipper inn rikelig med dagslys og skaper en lys atmosfære i hele oppholdsarealet. Fra stuen er det direkte utgang til en romslig takterrasse, perfekt for utendørs måltider, solrike ettermiddager eller hyggelige kvelder. Med sin gjennomtenkte utforming fremstår Marifjell som en bolig som passer utmerket for familier som ønsker en bolig med smarte løsninger.

Fasader og plantegninger