Glittertind

Soverom4
Bad2
Vaskerom2
GarasjeJa
Bruksareal 1. etg138.4m2
Bruksareal 2. etg159.6m2
Overbygg56.1m2
Bruksareal totalt421.5m2
Bebygd areal (BYA)218.7m2
Lengde22.6m
Bredde15.4m
TomtetypeSkrå
EnergimerkingB

Glittertind - Romslig og moderne enebolig

Glittertind er en romslig og moderne enebolig med en gjennomtenkt planløsning. Boligen er utformet for å gi både praktiske løsninger og gode oppholdsrom, og passer godt for familier som ønsker noe litt utenom det vanlige.

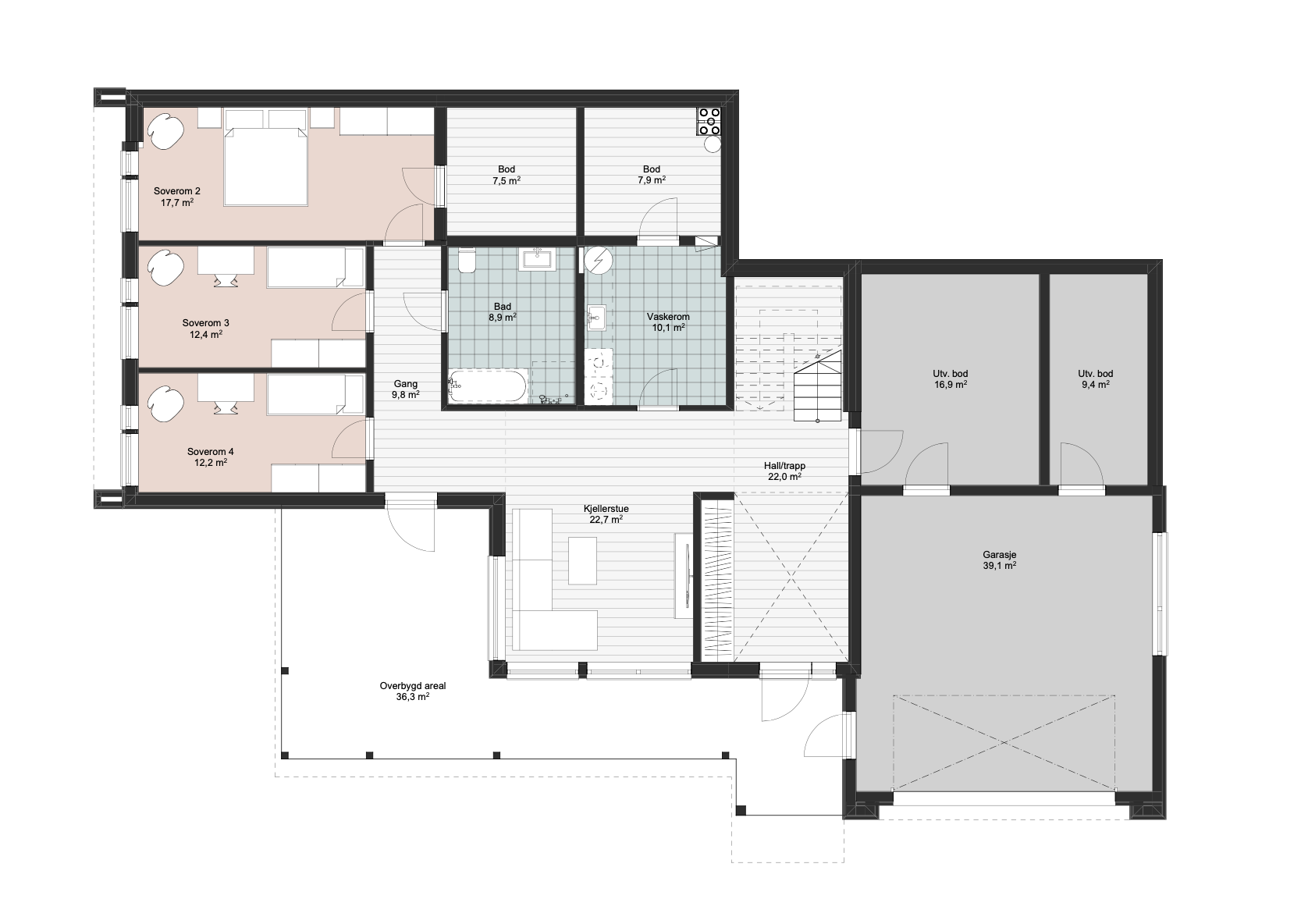
På inngangsplanet finner man en integrert garasje med plass til to biler, med direkte adkomst inn i boligen – en praktisk detalj i hverdagen. Her ligger også en egen TV-stue, tre soverom, bad og et separat vaskerom.

I andre etasje åpner boligen seg opp med en stor og lys stue- og kjøkkenløsning.

Høy himling og store vindusflater gir godt med dagslys og en luftig romfølelse. Fra stuen er det utgang til en stor balkong, hvor man kan nyte solrike dager og lune sommerkvelder.

I tillegg finnes det en ekstra stue som gir mulighet for en mer tilbaketrukket sone. Hovedsoverommet har tilknyttet garderoberom og eget bad. Glittertind er ikke bare en moderne bolig – det er et hjem med særpreg og kvaliteter som gjør det både praktisk og inspirerende å bo i. Her er det lagt vekt på gode løsninger, lys og rom, samt et design som gir deg en unik bolig.

Fasader og plantegninger