Falken

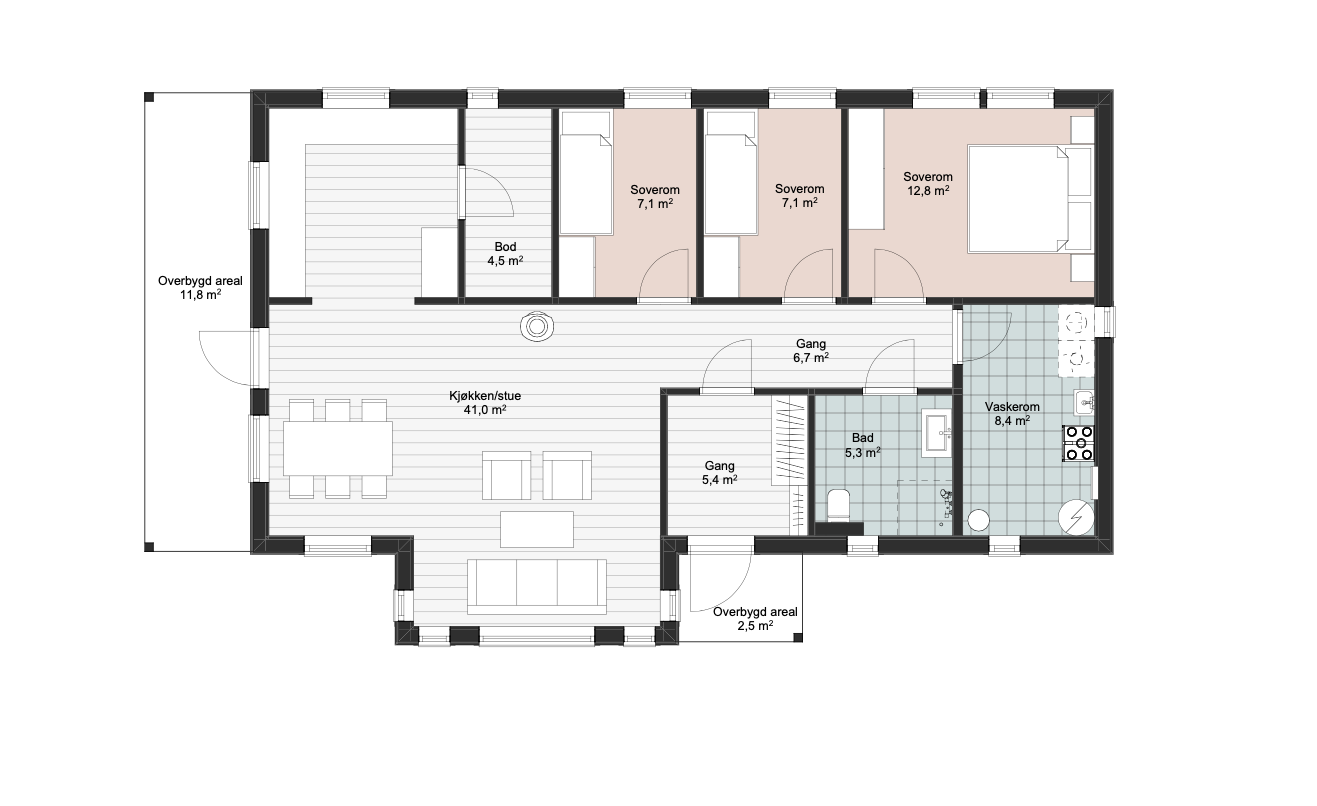
Soverom3
Bad1
Vaskerom1
Bod1
CarportJa
Bruksareal 1. etg103.0m2
Overbygg14.2m2
Bruksareal totalt117.3m2
Bebygd areal (BYA)130.6m2
Lengde16.0m
Bredde9.1m
TomtetypeFlat
Tilgjengelig boenhetJa
EnergimerkingB

Falken - Innholdsrik og funksjonell bolig

Falken er en innholdsrik og funksjonell bolig med en enkel, men gjennomtenkt arkitektonisk utforming. Planløsningen er romslig og effektiv, noe som gir en god balanse mellom åpne fellesarealer og private rom.

Boligen har et arealeffektivt design som rommer tre komfortable soverom, en luftig og åpen stue- og kjøkkenløsning som innbyr til både hverdagsliv og sosiale sammenkomster, samt et romslig bad og et stort vaskerom med god arbeids- og oppbevaringsplass.

Uteplassen er overbygd og skjermet, og fungerer som en naturlig forlengelse av oppholdsarealene. Den enkle, arkitektoniske utformingen gir boligen et tidløst preg, med rene linjer og et uttrykk som glir naturlig inn i ulike bomiljøer.

Fasader og plantegninger