Fossafjell

Soverom4
Bad2
Vaskerom1
Bod1
Utvendig bod1
CarportJa
Carport bruksareal16.2m2
Bruksareal sokkel69.0m2
Bruksareal 1. etg72.6m2
Overbygg13.1m2
Bruksareal totalt176.2m2
Bebygd areal (BYA)121.7m2
Lengde11.8m
Bredde10.6m
TomtetypeSkrå
Tilgjengelig boenhetJa
EnergimerkingB

Fossafjell - Moderne familiebolig tilpasset skrå tomter

Fossafjell er en moderne enebolig med tydelig arkitektonisk uttrykk, rene linjer og flatt tak. De store vindusflatene gir boligen et elegant preg samtidig som de slipper inn mye naturlig lys og skaper en luftig atmosfære.

Huset er spesielt godt egnet for skrå tomter og har en arealeffektiv utforming som gjør at det passer perfekt også på mindre tomter der arealet må utnyttes optimalt.

Boligen rommer hele fire soverom, to bad og en romslig kjellerstue – en fleksibel løsning som gir god plass til både familieliv, gjester og egne soner.

Den åpne stue- og kjøkkenløsningen binder hjemmet sammen og gir en naturlig samlingsplass for måltider og hyggelige stunder.

Et praktisk vaskerom med egen utgang gjør hverdagen enklere, mens utvendig bod og carport sørger for rikelig med oppbevaringsplass og trygg parkering. Fossafjell kombinerer moderne design med funksjonelle løsninger – en bolig som gir deg både stil, komfort og effektiv arealutnyttelse.

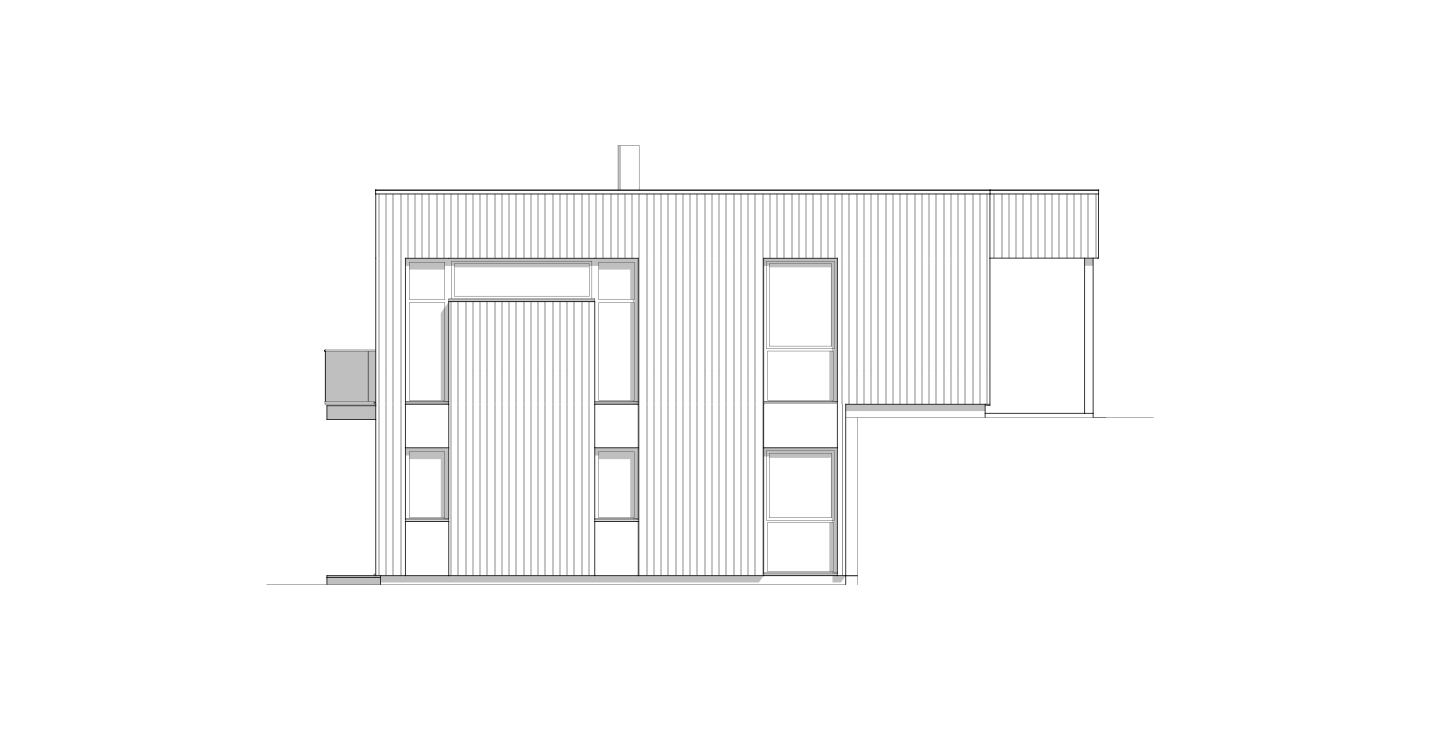
Fasader og plantegninger