Muen

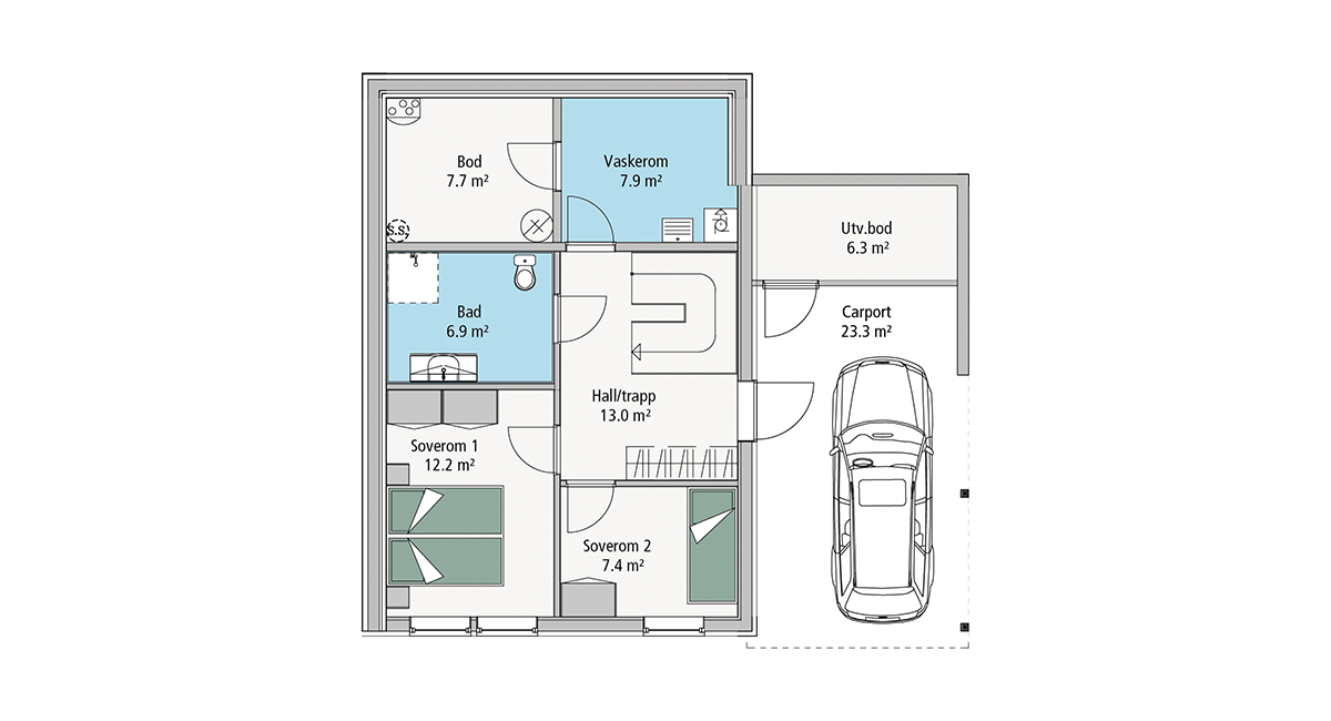
Soverom4
Bad2
Vaskerom1
Bod1
Utvendig bod1
CarportJa
Carport bruksareal23.3m2
Bruksareal sokkel58.5m2
Bruksareal 1. etg82.1m2
Bruksareal totalt170.2m2
Bebygd areal (BYA)102.0m2
Lengde10.9m
Bredde10.0m
TomtetypeSkrå
EnergimerkingB

LEJLA OMEROVIC, arkitekt:
- Muen er et moderne og innholdsrikt hus for små tomter. Boligen kan også tilrettelegges for flat tomt og eneboliger i kjede. Carporten ved inngangen lar deg gå tørrskodd inn til boligen.

Fasader og plantegninger