Perletind

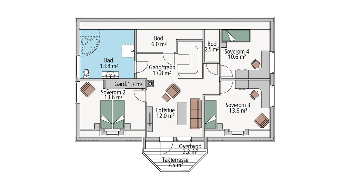
Soverom4
Bad2
Vaskerom1
Bod3
Bruksareal 1. etg121.5m2
Bruksareal 2. etg91.3m2
Overbygg13.9m2
Bruksareal totalt226.7m2
Bebygd areal (BYA)149.2m2
Lengde15.7m
Bredde13.1m
TomtetypeFlat
Tilgjengelig boenhetJa
EnergimerkingB

OLE MARTTIN ØSTBY, ingeniør:
-Perletind er et stort og særpreget hus. En bolig med fleksible oppholdsrom samt et rikt og detaljert fasadeuttrykk. Perletind har vært en av våre bestselgere i flere år.

Fasader og plantegninger