Liskollen

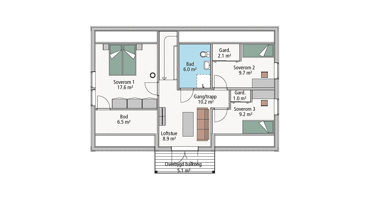
Soverom3
Bad2
Bod2
Bruksareal 1. etg91.3m2
Bruksareal 2. etg73.9m2
Overbygg17.6m2
Bruksareal totalt182.8m2
Bebygd areal (BYA)117.2m2
Lengde12.4m
Bredde11.3m
TomtetypeFlat
EnergimerkingB

OLE MARTTIN ØSTBY, ingeniør:
- Liskollen har en åpen og god planløsning. Med førhøyet knevegg blir loftet godt utnyttet.

Fasader og plantegninger