Snota

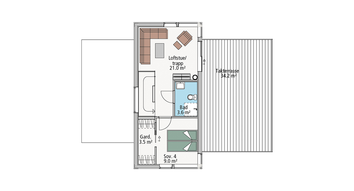
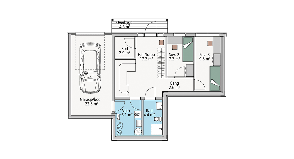
Soverom4
Bad3
Vaskerom1
Bod1
GarasjeJa
Bruksareal sokkel53.1m2
Bruksareal 1. etg84.6m2
Bruksareal 2. etg38.7m2
Overbygg15.4m2
Bruksareal totalt214.3m2
Bebygd areal (BYA)110.6m2
Lengde13.0m
Bredde10.0m
TomtetypeSkrå
EnergimerkingB

LEJLA OMEROVIC, arkitekt:
– Snota er en moderne bolig for skrå tomter. Med integrert garasje, tre plan og loftstue med utgang til en stor fin takterrasse er dette et arealeffektivt hus.

 

 

Fasader og plantegninger